














Großzügige 2-Zimmer-Wohnung mit zwei Süd-West-Loggias in Olching
- 82140 Olching
Zur Vermietung steht eine großzügig geschnittene 2-Zimmer-Wohnung im 2. Obergeschoss eines gepflegten Wohn- und Geschäftshauses in Olching.
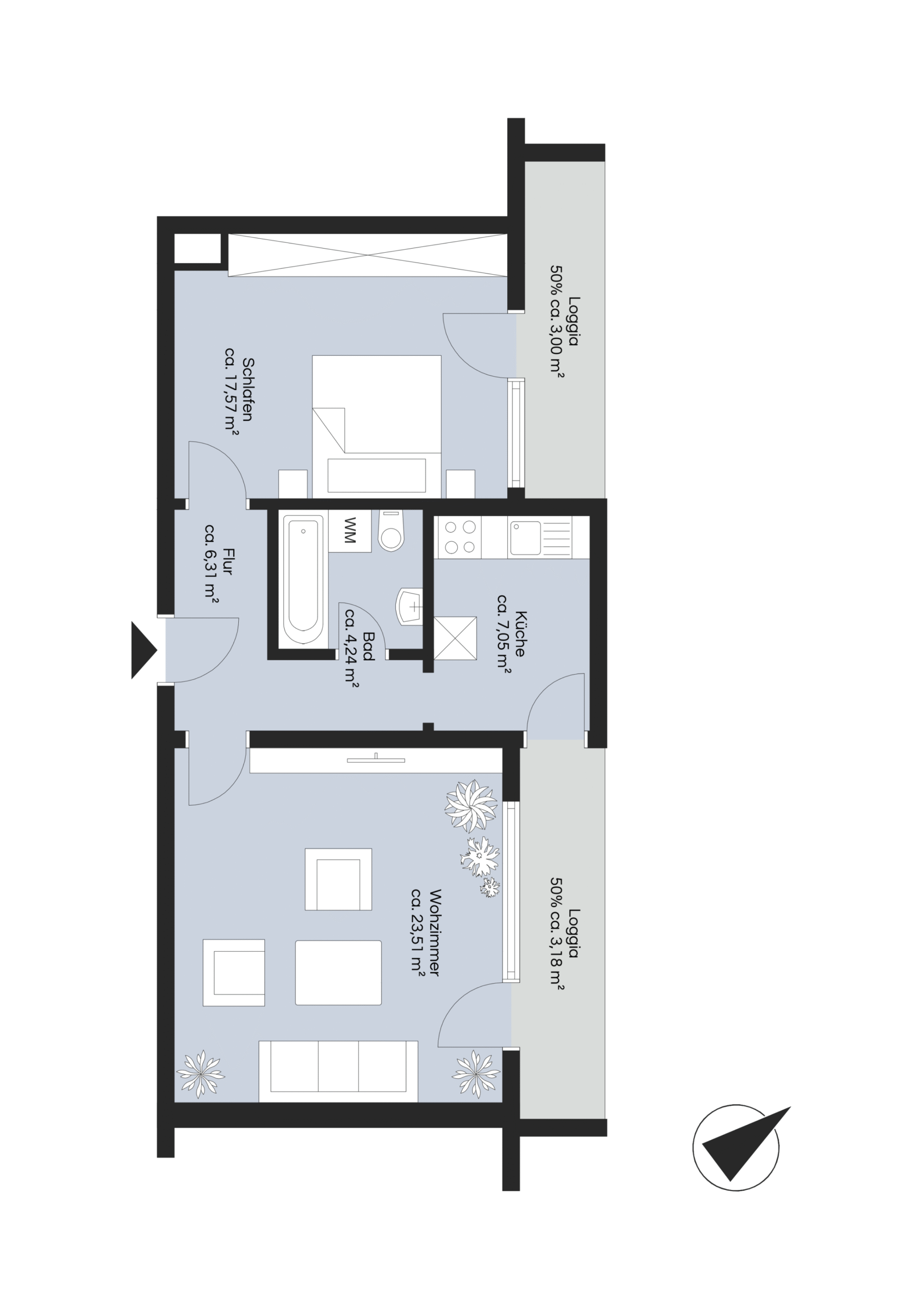
Das Highlight dieser Wohnung sind die zwei optimal nach Süd-Westen ausgerichteten Loggias, die für besonders helle Wohnräume und viele Sonnenstunden sorgen. Eine Loggia ist direkt vom Schlafzimmer aus zugänglich, die zweite befindet sich vor dem Wohnzimmer und kann zusätzlich auch bequem von der Küche aus betreten werden. Damit bieten sich vielfältige Nutzungsmöglichkeiten – ob als sonniger Frühstücksplatz, geschützter Rückzugsort oder entspannter Feierabendbereich.
Die Wohnräume sind mit einem Laminatboden in Parkettoptik ausgestattet, der eine warme und wohnliche Atmosphäre schafft. Das innenliegende, hell geflieste Badezimmer verfügt über eine Badewanne sowie einen praktischen Waschmaschinenanschluss.
Die Wohnung befindet sich im 2. Obergeschoss ohne Aufzug und eignet sich ideal für Singles oder Paare, die eine gut geschnittene und lichtdurchflutete Wohnung mit attraktiven Außenflächen suchen.
Ein Kellerabteil gehört ebenfalls zur Wohnung und bietet zusätzlichen Stauraum.
Objektdaten
| Grunddaten | |
| Objekt -ID | 1426MG |
| Objekt | Großzügige 2-Zimmer-Wohnung mit zwei Loggias |
| Objektart | 2 ZKB |
| Anschrift | 82140 Olching |
| Baujahr | 1993 |
| Zustand | Renoviert |
| Etage | 2 |
| Lift | Nein |
| Verfügbar | 4/1/2026 |
| Flächen | |
| Wohnfläche | 60 m² |
| Raumangebot und Ausstattung | |
| Zimmer | 2 |
| Schlafzimmer | 1 |
| Bad mit Wanne-WC | 1 |
| Bodenart | Laminat in Parkettoptik, helle Fliesen |
| Einbauküche | Ja, gegen Ablöse |
| Kellerabteil | Ja |
| Loggia | 2 |
| Ausstattung | Normal |
| Heizungsart / EnEV | Zentralheizung, Gas |
| Miete | |
| Nettokaltmiete p.m. | 950 € |
| NK-Vorauszahlung p.m. | 240 € |
| Kaution | 3 Nettomonatsmieten |
| Hinweise | |
| Bonitätsvoraussetzung | Einwandfreie Schufa |
| Haushaltsnettoeinkommen 2.500 p.m. | |
| Haustiere | Nein |
Highlights
- 2 großzügig geschnittene Zimmer
- Zwei Loggias mit optimaler Süd-West-Ausrichtung
- Loggia am Wohnzimmer zusätzlich über die Küche zugänglich
- Laminatboden in Parkettoptik
- Innenliegendes, hell gefliestes Bad
- Badewanne
- Waschmaschinenanschluss im Bad
- Obergeschoss ohne Aufzug
- Kellerabteil
- Gepflegtes Wohn- und Geschäftshaus
Grundrisse
Lage
Makrolage
Die Stadt Olching liegt im westlichen Umland von München im Landkreis Fürstenfeldbruck und zählt zu den gefragten Wohnlagen der Metropolregion. Die Kombination aus urbaner Infrastruktur, gewachsenem Stadtbild und naturnahem Umfeld macht Olching besonders attraktiv.
Durch die hervorragende Verkehrsanbindung an München sowie die Nähe zu wichtigen Verkehrsachsen profitieren Bewohner von einer optimalen Erreichbarkeit bei gleichzeitig hoher Lebensqualität.
Mikrolage
Die Wohnung befindet sich in zentraler Lage von Olching. Einkaufsmöglichkeiten für den täglichen Bedarf, Ärzte, Apotheken, Cafés und Restaurants sind bequem erreichbar. Der S-Bahnhof Olching mit Anschluss an die S-Bahn München (Linie S3) ist in kurzer Zeit erreichbar und bietet eine direkte Verbindung nach München sowie in die umliegenden Gemeinden. Die Umgebung ist geprägt von einer gewachsenen Wohnstruktur mit guter Infrastruktur und kurzen Wegen – ideal für komfortables Wohnen mit optimaler Süd-West-Ausrichtung.
Exposé & Baubeschreibung anfordern
Alle Angaben stellen nur eine Kurzbeschreibung unseres Angebotes in Gräfelfing dar. Gerne senden wir Ihnen unser ausführliches Exposé mit weiteren Informationen, Lageplänen und Fotos zu.