




















Flexible Gewerbefläche für Produktion, Montage oder Lager im Obergeschoss
- 82166 Gräfelfing
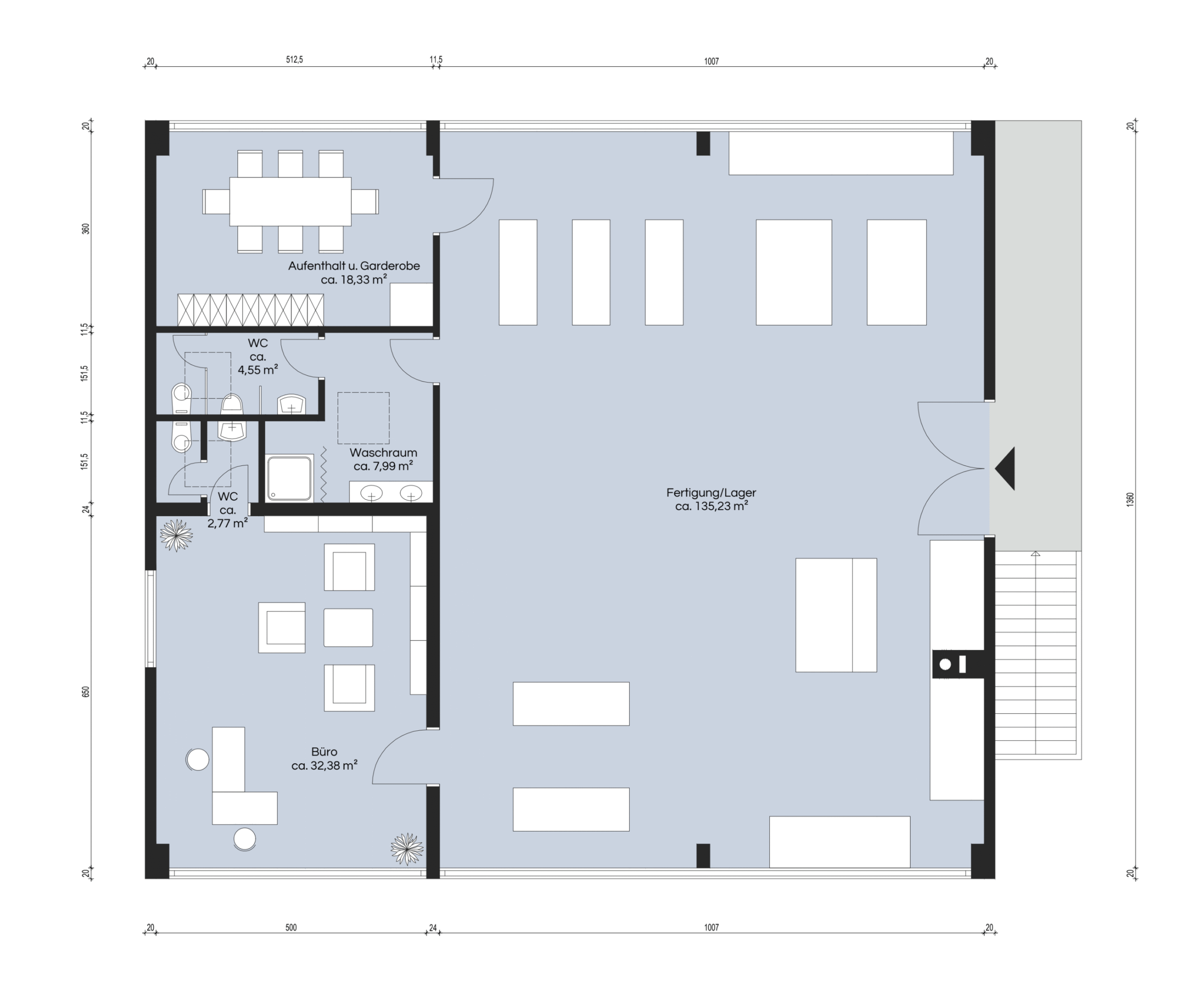
Zur Vermietung steht eine vielseitig nutzbare Gewerbefläche im Obergeschoss eines etablierten Gewerbeobjektes im Gewerbegebiet von Gräfelfing. Die Fläche eignet sich ideal für Produktion, Montage oder Lagerzwecke und bietet ergänzend einen Office-Bereich, einen Sozialraum sowie Sanitäreinrichtungen.
Die Einheit überzeugt durch ihre funktionalen Rahmenbedingungen:
Mit einer Raumhöhe von ca. 4 Metern, einer Deckentragkraft von bis zu 750 kg/m² sowie einem vorhandenen Lastkran ist die Fläche auch für anspruchsvollere gewerbliche Nutzungen geeignet.
Der Zugang erfolgt über eine großzügige Eingangstreppe, wodurch sich die Fläche insbesondere für Betriebe anbietet, die keine ebenerdige Anlieferung benötigen.
Ein besonderer Vorteil ist die Renovierung in Absprache mit dem neuen Mieter. Dadurch können individuelle Anforderungen und betriebliche Abläufe bereits vor Einzug berücksichtigt und die Fläche optimal angepasst werden.
Objektdaten
| Grunddaten | |
| Objekt -ID | 1626MG |
| Objekt | Flexible Gewerbefläche für Produktion, Montage oder Lager |
| Objektart | Gewerbeetage |
| Anschrift | 82166 Gräfelfing |
| Zustand | Nach Absprache |
| Etage | Obergeschoss |
| Verfügbar | Nach Absprache |
| Flächen | |
| Nutzfläche | 197 m² |
| Raumangebot und Ausstattung | |
| Zimmer | 3 |
| Teeküche/Aufenthalt | 1 |
| WC | 1 |
| Bodenart | Beton/Laminat |
| EDV-Verkabelung | Nein |
| Heizungsart / EnEV | Zentralheizung |
| Miete | |
| Nettokaltmiete p.m. | 2,000 € |
| NK-Vorauszahlung p.m. | 200 € |
| Kaution | 3 Nettomonatsmieten |
Pflichtangabe
Energiebedarfsausweis ist in Bearbeitung und liegt zur Besichtigung vor.
Highlights
- Nutzbar als Produktions-, Montage- oder Lagerfläche
- Obergeschoss eines Gewerbeobjektes
- Office-Bereich
- Sozialraum
- Sanitärflächen
- Raumhöhe ca. 4,00 m
- Deckentragkraft bis 750 kg/m²
- Lastkran vorhanden
- Zugang über große Eingangstreppe
- Renovierung nach Absprache mit dem Mieter
Grundrisse
Lage
Makrolage
Gräfelfing zählt zu den gefragtesten Gewerbestandorten im westlichen Umland von München. Die Gemeinde verbindet eine hervorragende wirtschaftliche Infrastruktur mit der unmittelbaren Nähe zur Landeshauptstadt München.
Durch die gute Anbindung an wichtige Verkehrsachsen sowie den öffentlichen Nahverkehr profitieren Unternehmen von kurzen Wegen, hoher Standortattraktivität und einem dynamischen wirtschaftlichen Umfeld.
Mikrolage
Die Gewerbefläche befindet sich im Gewerbegebiet von Gräfelfing in einem hochwertigen und etablierten Umfeld. In direkter Nachbarschaft liegen unter anderem das renommierte Grefis Hotel sowie die international bekannte Doemens Brauerei-Fachschule. Die Umgebung ist geprägt von modernen Gewerbebetrieben, Dienstleistern und Forschungseinrichtungen und bietet ein professionelles, repräsentatives Arbeitsumfeld. Eine gute Erreichbarkeit für Mitarbeiter, Kunden und Geschäftspartner ist gewährleistet.
Exposé & Baubeschreibung anfordern
Alle Angaben stellen nur eine Kurzbeschreibung unseres Angebotes in Gräfelfing dar. Gerne senden wir Ihnen unser ausführliches Exposé mit weiteren Informationen, Lageplänen und Fotos zu.